Planungsbüro

Vorher schon sehen, wie es fertig aussieht...

... dank Planung
mit Virtual Reality

Virtuelle Planungen - erleben Sie Ihr Traumbad, Ihre Küche oder Diele, bevor Sie gebaut haben. Wir geben Ihrem Projekt Raum und Design und erleichtern Ihnen die Entscheidungen über Materialien, Farben, und Formate. Die neue kreative Art, Innenarchitektur zu erleben.

Im persönlichen Gespräch werden Ihre Anforderungen an das zu errichtende Projekt erfasst und Ihre Wünsche eingearbeitet. Unsere kreative Ideen und ein hoher Qualitätsanspruch sind die Basis für ein perfektes Ergebnis, das wir mit Ihnen verfeinern, bis Ihr Wohntraum entworfen ist.

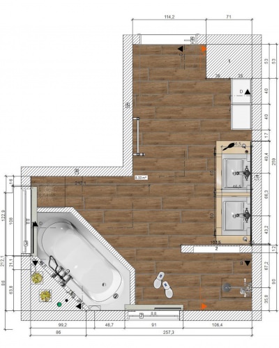
Wir erstellen Raumpläne für Fliesen, Beleuchtung und Sanitärgegenstände. Die Pläne für Ihr Projekt werden Ihnen in PDF-Format zur Verfügung gestellt, diese dienen auch zur behördlichen Vorlage bei einer altersgerechten Badsanierung. Planbilder erhalten Sie als JPG-Datei in Fotoqualität.

Vom Erstgespräch über die Projektphase bis hin zur Fertigstellung begleiten wir Sie.

Wir planen für Sie als privaten Bauherren, Architekten und Bauträger im Rahmen der vereinbarten Konditionen.

Planen ist das gedankliche
Entwickeln und Gestalten von Räumen

Renovierung von uns geplant und ausgeführt:
Vorher und nachher

Geplante Objekte

Planungsbilder, Ausführung demnächst